Mietobjekt
Gewerbeimmobilie im Freiburger Westen
Mülhauserstr. 9
79110 Freiburg
Nutzung
Büro/Praxis
Beschreibung
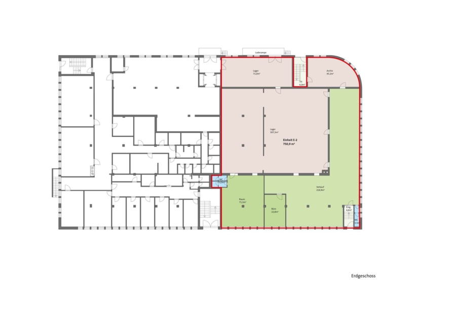
ERDGESCHOSS
Das Erdgschoss ist unterteilt in zwei Einheiten. Einheit 1 (links) wird zu Büro- und Schulungszwecken genutzt und ist vermietet, Einheit 2 unterteilt sich in einen Verkaufsraum mit angrenzendem Lager- und/oder Produktionsbereich (derzeit Leerstand). Der Verkaufsraum verfügt über einen eigenen Kundeneingang. Im Hofbereich befindet sich eine LKW-Laderampe mit direktem Zugang zum Lastenaufzug. Der zentrale Lagerbereich ist nicht unterkellert und verfügt daher über eine erhöhte Bodenlast.
Die Fläche kann auf Mieterwunsch ausgebaut werden.
Kontakt
Details
Objekt-ID
155259271
Objekttypen
Büro/Praxis, Bürohaus
Bürofläche ca.
751 m²
Letzte Modernisierung
2022
Verfügbar ab
sofort
Preis
auf Anfrage
Lage
Das Objekt befindet sich im Gewerbegebiet Freiburg-West. Die Nachbarschaftsbebauung ist geprägt von handwerklichen Betrieben, Bürogebäuden sowie Sportstätten (Eisstadion, Schwimmbad, Fitnesstudio, Vereinsheime, etc.). Das Gewerbegebiet grenzt zudem an ein Wohngebiet an, daher befinden sich ausreichend Geschäfte des täglichen Bedarfs in der Umgebung. Das Naherholungsgebiet „Flückingersee“ ist ebenso in direkter Nachbarschaft. Über die nahe gelegene Berliner Allee besteht eine gute Anbindung an den ÖPNV, die Bundesstraße 31a und in deren weiterem Verlauf an die Autobahn 5 (Anschlussstelle Freiburg-Mitte).
Maklercourtage
3 Nettomonatskaltmieten
Der Mieter zahlt im Falle des Abschlusses des Mietvertrages an den Makler (Firma MSI Gewerbeimmobilien GmbH) für die von ihm erbrachte Maklertätigkeit eine Provision in Höhe von 3 Nettomonatsmieten zuzüglich Mehrwertsteuer. Es gelten die Allgemeinen Geschäftsbedingungen der MSI Gewerbeimmobilien GmbH. Diese sind einsehbar unter www.msi-gewerbeimmobilien.de oder in unseren Geschäftsräumen.



